Eindhoven

Woenselse Markt

View 11 photos
View 11 photos
View 11 photos

Are you interested?

Please get in touch with us. We'd be happy to provide more information or schedule a viewing.

Description

Furnished and Spacious 1-Bedroom Apartment at Woenselse Markt, Eindhoven

Are you looking for a furnished apartment in a prime location with generous space and immediate availability? This beautiful 1-bedroom corner apartment on the 2nd floor at Woenselse Markt offers you all the comfort and amenities you need.

Location:

Situated in a representative apartment complex at the lively Woenselse Markt, this apartment has everything within reach. Shops, supermarkets, and restaurants are just around the corner. Moreover, the bustling city center of Eindhoven, Woensel Shopping Center, and the central station are all within walking distance. The nearest highway can be reached within just 6 minutes, making this apartment ideal for those who appreciate both the tranquility of their own home and the city's dynamic atmosphere.

Special Features:


Living area: approx. 70 m²
Perfect location near shops, city center, and public transport
Modern kitchen and spacious living room
Indoor storage room with connections for washing appliances
Private parking space in a secured area (optional)

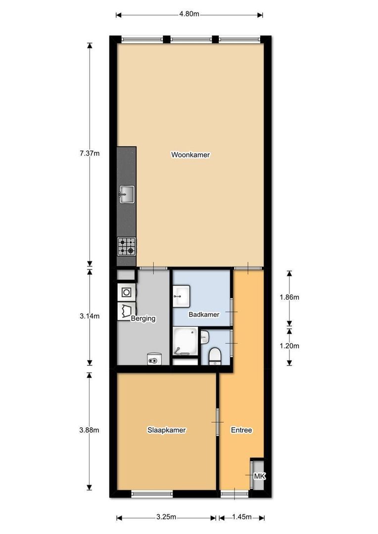
Apartment Layout:

Ground Floor:
At the entrance of the complex, you'll find the intercom and mailboxes. The central hall is accessible via a secured door and provides access to the stairwell and the elevator. At the rear of the complex is the secured parking area, where you can rent your own parking space.

The Apartment:
This corner apartment is located on the second floor, ensuring no passersby walk by your windows, providing extra privacy. The spacious hallway has beautiful laminate flooring and features a utility closet (4 circuits and a safety switch).

The living room is spacious and receives plenty of natural light through the large windows. This space also features laminate flooring, a video intercom system, and tilt-and-turn windows, making it easy to ventilate. The modern open kitchen is fully equipped with ample storage, a 4-burner gas stove, an extractor hood, and a fridge. Adjacent to the kitchen is a convenient, large indoor storage room/pantry with connections for a dishwasher, washing machine, and dryer. The central heating boiler (Nefit 2005) and mechanical ventilation unit are also located here.

The bedroom also has laminate flooring and offers enough space for a comfortable bed and storage furniture. You will also find a television connection here.

The bathroom is fully tiled and features a sink, a shower area, and a fixed wall cabinet for additional storage space. Additionally, there is a separate, partially tiled toilet with a small sink.

Rental Terms:


Starting date: 1st of May 2026
Rent: € 1,300 per month
Parking space: € 50 per month (mandatory)
Deposit: € 2,000
Minimum rental period: 12 months
Pets and smoking are not allowed

The rent is excluding gas, water, electricity, internet, and municipal taxes.

We follow a protocol for the allocation of candidates. For more information, please see this link: https://www.extatehousing.nl/nl/protocol

Details

Acceptance

Asking price
€ 1.350 p.m. ex.
Interior
Fully furnished
Status
Available
Acceptance
Directly
Address
Woenselse Markt
Zipcode
5612CS
City
Eindhoven

Build

Apartment type
Walk-up house
Build year
2005

Surface and volume

Living surface
ca. 70m²

Layout

Rooms
2
Bedrooms
1
Bathrooms
1

Energy

Energy label
A

Location

[ { "lat": 51.45103, "lng": 5.4713887, "heading": 0, "pitch": 0 } ]

Floor plans

Get in touch with us!

Please fill in the information below and we will contact you as soon as possible.

The form has been sent successfully. We will contact you as soon as possible.

Unfortunately we can not conclusively determine whether you are a human or an automated bot/spammer. Hence, we are unable to submit the form. Please retry or contact the real estate agent directly via email.

Something went wrong while sending the contact form. Please check that you have filled in all the required fields correctly and try again.

Personal details

recaptcha
reCAPTCHA
PrivacyTerms

Curious about the rental value of your property?

Calculate your rental price for free through us!

Do the free application