Eindhoven

Bomanshof

Bekijk 20 foto's
Bekijk 20 foto's
Bekijk 20 foto's

Heb je interesse?

Neem contact met ons op. We geven graag meer informatie of plannen een bezichtiging.

Omschrijving

Prachtig instapklaar gemeubileerde 3-kamerappartement met 2 balkons op een fijne locatie, op loopafstand van het stadscentrum van Eindhoven!

Dit appartement heeft een ideale ligging met winkelvoorzieningen, uitgaansgelegenheden zoals het Parktheater, diverse busverbindingen, het treinstation en sportaccommodaties in de nabijheid.

Kenmerken:

Bouwjaar: 1974
Woonoppervlakte: ca. 97 m²
Inhoud: ca. 304 m³
Beschikbaar vanaf: per 1 maart 2026

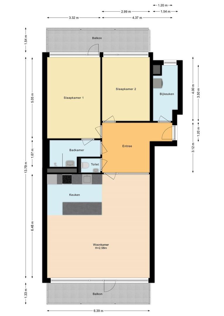
Indeling:

Begane grond: Een representatieve entree met een intercominstallatie en brievenbussen. De centrale hal biedt toegang tot de lift en de berging.

Eerste verdieping: Een portiek met naast de voordeur een meterkast (9 groepen).

Appartement: De entree leidt naar een hal die toegang biedt tot alle vertrekken. Het appartement is voorzien van een fraaie laminaatvloer.

De royale woonkamer heeft grote raampartijen voor veel lichtinval en een loopdeur naar het oost-gelegen balkon aan de achterzijde, ideaal voor een rustige zitplek. De open woonkeuken is uitgerust met een wandopstelling, diverse onder- en bovenkasten, een vaatwasser, koelkast met vriesvak, keramische kookplaat, combi-oven en afzuigkap. Een extra keukenblok met werkblad en barkrukken maakt het tot een gezellige bar.

De twee slaapkamers bevinden zich aan de voorzijde en zijn voorzien van veel lichtinval door grote raampartijen. Een van de slaapkamers heeft toegang tot de badkamer en het west-gelegen balkon aan de voorzijde, compleet met een automatisch zonnewerend rolluik.

De geheel betegelde badkamer is vernieuwd en voorzien van een open douche en wastafel, met mechanische ventilatie. Het separate toilet is ook betegeld en uitgerust met een wandcloset, fonteintje en mechanische ventilatie.

De royale inpandige berging heeft een tegelvloer en aansluitingen voor was- en droogapparatuur, met extra ruimte voor opslag.

Voorwaarden:

Beschikbaar: Per direct
Huurprijs: €1.695 per maand
Servicekosten: €30 per maand
Voorschot stookkosten: €185 per maand
Waarborgsom: €2.500

Roken is niet toegestaan. Huisdieren in overleg.
De huurprijs is exclusief gas, water, elektriciteit en gemeentelijke belastingen.

Wij volgen een protocol voor de toewijzing van kandidaten. Voor meer informatie, zie deze link: https://www.extatehousing.nl/en/protocol

Kenmerken

Aanvaarding

Prijs
€ 1.695 p.m. ex.
Inrichting
Gemeubileerd
Status
Beschikbaar
Oplevering
01-03-2026
Adres
Bomanshof
Postcode
5611NK
Plaats
Eindhoven

Bouw

Soort appartement
Galerijflat
Bouwjaar
1974

Oppervlakten en inhoud

Woonoppervlakte
ca. 95m²

Indeling

Aantal kamers
3
Aantal slaapkamers
2
Aantal badkamers
1

Energie

Energielabel
D

Locatie

[ { "lat": 51.4309476, "lng": 5.4851274, "heading": 0, "pitch": 0 } ]

Plattegronden

Neem contact met ons op!

Vul onderstaande gegevens in en wij nemen zo snel mogelijk contact met je op.

Jouw bericht is naar ons verzonden. Wij nemen zo snel mogelijk contact met je op.

Sorry, we kunnen helaas niet met zekerheid vaststellen of je een mens of een geautomatiseerde bot/spammer bent. Hierdoor kunnen we het formulier dat je hebt ingevuld niet verzenden. Probeer het opnieuw of neem direct contact op met de makelaar via e-mail.

Er is iets mis gegaan met het versturen van het formulier.
Controleer of je alle velden (goed) hebt ingevoerd en probeer het nog een keer.

PERSOONSGEGEVENS

recaptcha
reCAPTCHA
PrivacyTerms

Benieuwd naar de verhuurwaarde van je woning?

Bereken via ons gratis je verhuurprijs!

Doe de gratis aanvraag