Eindhoven

Sebastiaan van Noyestraat 20

Bekijk 36 foto's
Bekijk 36 foto's
Bekijk 36 foto's

Heb je interesse?

Neem contact met ons op. We geven graag meer informatie of plannen een bezichtiging.

Omschrijving

Ruime hoekwoning met eigen oprit, carport, zonnige tuin, energielabel B, gelegen aan de Sebastiaan van Noyestraat in de wijk Mensfort (Woensel-Zuid) in Eindhoven. Deze woonomgeving staat bekend om haar goede bereikbaarheid en de gunstige ligging nabij diverse voorzieningen.

Welkom bij deze ruime hoekwoning, gelegen op een fijne locatie in Eindhoven. De woning beschikt over een lichte doorzonwoonkamer, twee badkamers, een functionele zolder met dakkapel én 8 zonnepanelen (2026). Met energielabel B woon je hier energiezuinig en comfortabel. Een ideale woning voor wie op zoek is naar ruimte en gemak!

Indeling

Begane grond
Je komt binnen in een hal, waar zich een mooi gerenoveerd toilet (2026) bevindt, voorzien van een fonteintje en spiegel. In de hal vind je ook een extra kelder met de vernieuwde meterkast (2026), perfect voor extra opslagruimte.

Vanuit de hal loop je door naar de leefruimte. De gehele begane grond is voorzien van een tegelvloer, wat zorgt voor een strakke en onderhoudsvriendelijke basis. Dankzij de uitbouw is de doorzonwoonkamer extra ruim en biedt deze veel lichtinval en plek voor een comfortabele zit- en eethoek. In het plafond zijn spotjes geplaatst die zorgen voor extra verlichting en sfeer in de kamer. De woonkamer en keuken is voorzien van vloerverwarming, radiatoren en automatische Luxaflex-gordijnen.

De keuken is uitgerust met diverse inbouwapparatuur, waaronder een combi oven/magnetron, vaatwasser, koelkast en een 4-pits inductiekookplaat. Sfeerverlichting zorgt voor een moderne uitstraling. Aangrenzend bevindt zich de bijkeuken, voorzien van een vriezer en praktische kastjes met volop opbergruimte.

Eerste verdieping
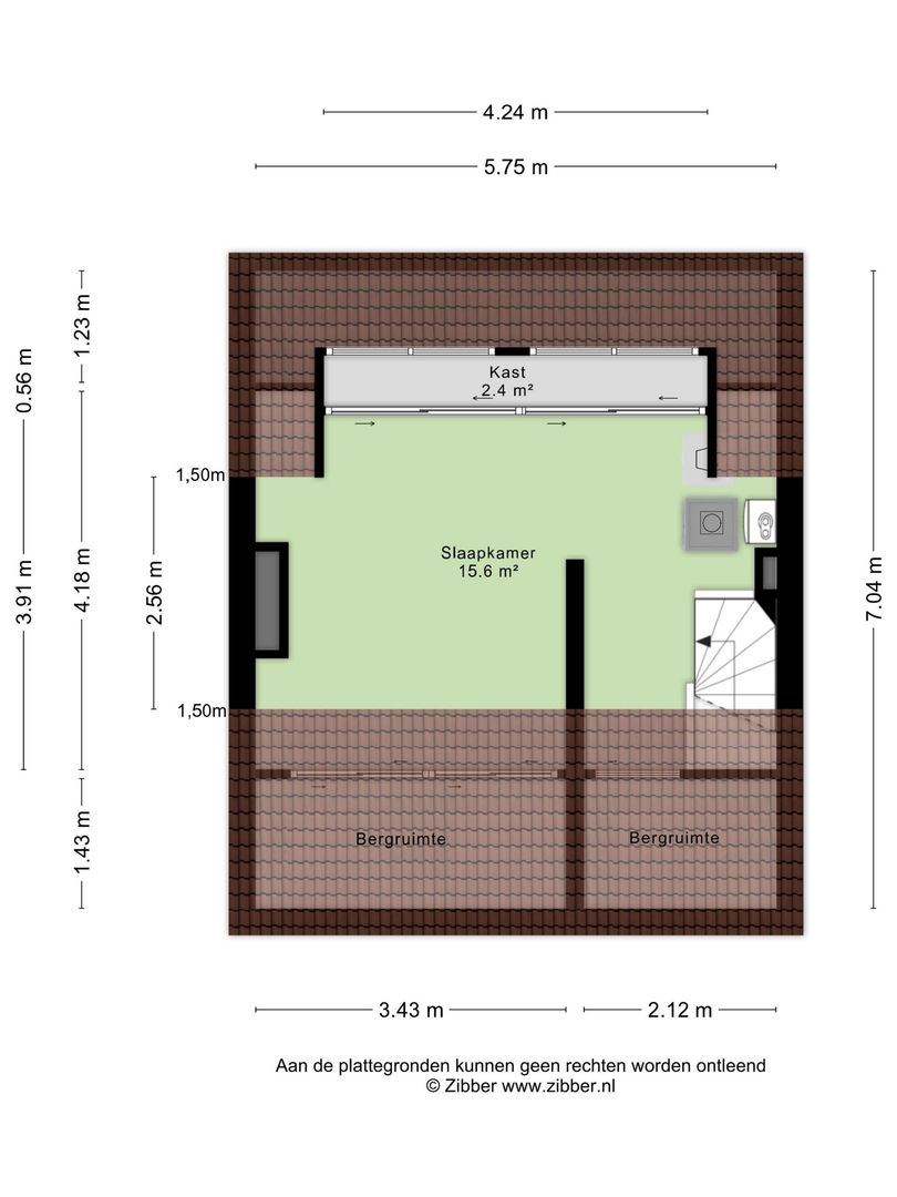
Via de trap met recent vernieuwde vloerbedekking bereik je de eerste verdieping. Ook de overloop is netjes afgewerkt met vloerbedekking, wat zorgt voor een warme uitstraling. Op deze verdieping bevinden zich twee slaapkamers en twee badkamers, wat zorgt voor extra comfort en flexibiliteit.

De slaapkamers zijn beide voorzien van een laminaatvloer en houten kozijnen. De slaapkamer op de zuidkant beschikt over een nieuwe airconditioning voor verwarming en koeling (2026) én een hor. Vanuit de slaapkamer op de noordkant kan je ver uitkijken over een groene omgeving, hierdoor voelt de ruimte nog groter aan.

Wat deze verdieping extra bijzonder maakt, zijn de twee badkamers. De eerste badkamer is praktisch ingericht met een douche en toilet. De tweede badkamer is ruimer opgezet en beschikt over een ligbad en twee wastafels, waardoor je hier heerlijk kunt ontspannen. Deze indeling maakt de woning zeer geschikt voor gezinnen of voor het ontvangen van gasten.

Zolder
De zolder is bereikbaar via een trap die gedeeltelijk is voorzien van vloerbedekking. Deze verdieping is verrassend ruim en praktisch ingericht, met veel opbergruimte die netjes in de wanden is verwerkt. Dankzij de dakkapel met kunststof kozijnen en HR ++ glas komt er veel natuurlijk licht binnen en voelt de ruimte extra ruim aan. De CV ketel (2011, laatste onderhoud 2026) bevindt zich in de voorzolder.

De zolder is afgewerkt met een laminaatvloer en de ramen zijn voorzien van horren, waardoor je hier comfortabel kunt ventileren. Deze verdieping is dan ook uitstekend geschikt als extra slaapkamer, werkruimte of hobbyruimte.

Buitenruimte
De ruime achtertuin is gelegen op het zuidoosten, waardoor je hier al vroeg op de dag van de zon kunt genieten. De tuin is ingericht met een gezellige en knusse zithoek, perfect om te ontspannen of om met vrienden en familie buiten te zitten.

Daarnaast beschikt de tuin over een praktische schuur met voldoende ruimte voor het stallen van fietsen en extra opslag. Extra pluspunt is de eigen oprit, wat zorgt voor parkeergelegenheid op eigen terrein.

Bijzonderheden:


Hoekwoning met eigen oprit en carport
Gerenoveerd toilet op de begane grond (2026)
Ruime doorzonwoonkamer met veel lichtinval
Keuken met diverse inbouwapparatuur
Praktische bijkeuken met extra opbergruimte
Twee badkamers
Zolder met dakkapel en veel bergruimte
Tuin op het zuidoosten met schuur en achterom
Energielabel B
Nieuwe airco in de master slaapkamer (2026)
Voorzien van 8 zonnepanelen á 455WP (2026)
Meterkast vernieuwd (2026)

Kortom
Een ruime en energiezuinige hoekwoning met verrassend veel mogelijkheden, ideaal voor gezinnen of wie op zoek is naar comfortabel wonen met voldoende ruimte, zowel binnen als buiten. Plan snel een bezichtiging en ontdek zelf de mogelijkheden van deze woning!

ALGEMENE WERKWIJZE EN VOORWAARDEN

De eigenaar van deze woning heeft EXTATE HOUSING EINDHOVEN opdracht gegeven om te bemiddelen bij de verkoop.

Wij informeren je geheel vrijblijvend over de woning, de mogelijkheden voor financiering en de verkoop van jouw eigen woning.

BIEDEN
Biedingen kunnen rechtstreeks bij EXTATE HOUSING EINDHOVEN worden gedaan. Wij adviseren om een bod goed te onderbouwen en altijd schriftelijk te bevestigen.

ZEKERHEDEN Om de koop te waarborgen, wordt doorgaans binnen één week na het definitief worden van de koopovereenkomst een bankgarantie of waarborgsom ter hoogte van 10% van de koopsom gesteld.

MEETINSTRUCTIE De woning is gemeten volgens de NEN2580-norm. De opgegeven oppervlakten zijn indicatief; kleine verschillen kunnen voorkomen door afronding of meetmethodes.

AANBIEDINGSINFORMATIE Deze brochure is met zorg samengesteld op basis van informatie van de verkoper en derden. Hoewel wij streven naar nauwkeurigheid, kunnen geen rechten worden ontleend aan eventuele onjuistheden. Deze informatie moet in combinatie met een bezichtiging worden beschouwd als een uitnodiging tot een bod of onderhandeling.

MONDELINGE OVEREENSTEMMING Een mondelinge afspraak tussen koper en verkoper is niet rechtsgeldig. Pas na ondertekening van de koopovereenkomst is de koop definitief.

Voor meer informatie over deze woning en onze werkwijze, kijk op de website van EXTATE HOUSING EINDHOVEN.

Kenmerken

Aanvaarding

Prijs
€ 525.000 k.k.
Status
Beschikbaar
Oplevering
Per direct
Adres
Sebastiaan van Noyestraat 20
Postcode
5622KH
Plaats
Eindhoven

Bouw

Soort woonhuis
Eengezinswoning
Bouwjaar
1960

Oppervlakten en inhoud

Woonoppervlakte
ca. 128m²
Perceeloppervlakte
ca. 263m²

Indeling

Aantal kamers
4
Aantal slaapkamers
3
Aantal badkamers
2

Energie

Energielabel
B

Buitenruimte

Ligging
Aan rustige weg, Aan park, In woonwijk

Locatie

[ { "lat": 51.4601776, "lng": 5.4678341, "heading": 0, "pitch": 0 } ]

Plattegronden

Neem contact met ons op!

Vul onderstaande gegevens in en wij nemen zo snel mogelijk contact met je op.

Jouw bericht is naar ons verzonden. Wij nemen zo snel mogelijk contact met je op.

Sorry, we kunnen helaas niet met zekerheid vaststellen of je een mens of een geautomatiseerde bot/spammer bent. Hierdoor kunnen we het formulier dat je hebt ingevuld niet verzenden. Probeer het opnieuw of neem direct contact op met de makelaar via e-mail.

Er is iets mis gegaan met het versturen van het formulier.
Controleer of je alle velden (goed) hebt ingevoerd en probeer het nog een keer.

PERSOONSGEGEVENS

recaptcha
reCAPTCHA
PrivacyTerms

Benieuwd naar de verhuurwaarde van je woning?

Bereken via ons gratis je verhuurprijs!

Doe de gratis aanvraag